UEI Global Institutes, 14 Cities

PROJECT BRIEF

 

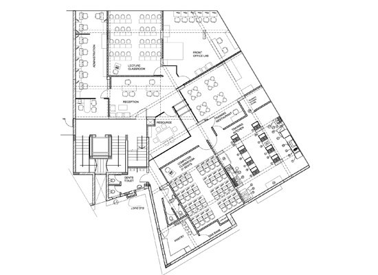
A prototype is first designed for this chain of hospitality training institutes as its first Center and then repeated across the country with required customization. The decor with dark brown Wenge wood and orange highlights conveys the warmth related to a hospitality industry. At the same time, the blue of UEI logo offers contrast that is extensively used for the classroom tables, providing a bright and cheerful feel to the centers. Ceiling adds excitement and variation to each space within these modestly done centers.

 

PROJECT FACTS:

AREA - 5,000 Sq. Ft. each - 14 Centers across India
COST - INR 58 Million
DESIGN ARCHITECT- AAS Design Solutions (P) Ltd.
ANKITA'S ROLE - Chief Designer