SAHARA HIGH SCHOOLS, 118 CITIES ACROSS INDIA

PROJECT BRIEF

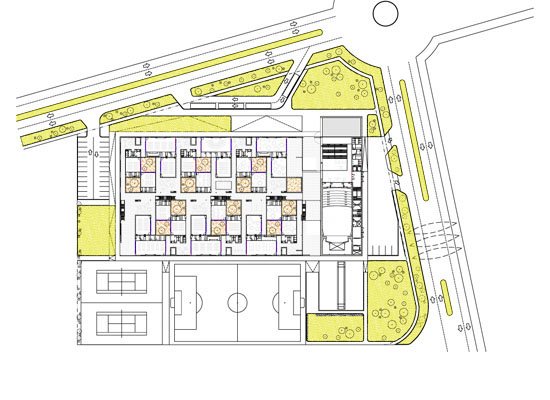
The school design is based on a modular concept that is adjusted according to area and requirement of each site. In addition to conventional learning areas such as classrooms, the building concept also provides spaces for Eco learning as well as Social learning creating an environment that is conducive to enhanced development of students. Each school comprises of a Ground+1 Academic Block and a taller Administrative Block. The Academic Block is designed as a cluster of repeating modules of classrooms that are arranged around courtyards on both ground and upper level. These courtyards are intelligently landscaped to provide opportunities for varied learning. The social interaction spaces along the central corridor increase chances of interaction between different school students. The Administration Block integrates the auditorium, offices, library, gym, indoor swimming pool and terrace sports areas. The building exterior is finished with exposed brickwork, while the interior contrasts with well finished appearance.

 

PROJECT FACTS:

AREA - 15000 sqm Each School.
COST - INR 220 Million Each School
DESIGN ARCHITECT- STL Architects
ANKITA'S ROLE - Project Architect